サンレジデンス錦綾東堀川 3階(IB000499)
[物件種別:マンション]
| 価格 | 3280万円 | 管理費 | 11,620円 | 修繕積立費 | 21,700円 |
|---|---|---|---|---|---|
| 専有面積 | 85.15m2 | バルコニー面積 | 9.01m2 | 専用庭面積 | m2 |
| 築年月 | 1982年11月 | 間取り | 3LDK | 採光面 | 西 |
| 住所 | 京都府京都市上京区竪富田町423サンレジデンス錦綾東堀川 | ||||
| アクセス |
京都市営地下鉄烏丸線今出川駅
徒歩 10分
|
||||
- 分譲マンション
- オートロック
- エレベーター
- システムキッチン
- 洗面所
- 追炊き機能
- 礼金無
- 敷金無
- エアコン
- ペットOK
- 楽器相談
- 宅配BOX
- 駐車場有
- BS/CSアンテナ
- インターネット
- 床暖房
- バス・トイレ別
- ユニットバス
- 室内洗濯機置場
- ウォシュレット
- 浴室乾燥機
- フローリング
- トランクルーム
- 1階店舗
- CATV
- 南向き
- TV付インターホン
- 飲食店可
- 新築
- ルームシェアOK
- 保証会社要加入
- 田の字地区
- 御所南学区
- 御所東学区
- 御所西エリア
- 御所北エリア
- 西陣エリア
部屋の写真・間取りなど
-
画像を拡大表示
サンレジデンス錦綾東堀川 外観
-
画像を拡大表示
西向きバルコニー 3LDK(壁芯85.15u)
-
画像を拡大表示
広々としたLDK 窓からは堀川の樹々の眺望あり
-
画像を拡大表示
ガスコンロ付きのシステムキッチンです 2020年1月に交換済み
-
画像を拡大表示
-
画像を拡大表示
LDKの隣に和室がございます
-
画像を拡大表示
2020年1月に交換済み
-
画像を拡大表示
-
画像を拡大表示
-
画像を拡大表示
2022年3月に畳表替えされています!
-
画像を拡大表示
西側に窓があり日当たりの良いお部屋です
-
画像を拡大表示
周りからの視線も気になりずらいです
-
画像を拡大表示
ウォシュレット付きのトイレ 2020年1月に交換済み
-
画像を拡大表示
-
画像を拡大表示
東側の洋室
-
画像を拡大表示
東側の洋室
-
画像を拡大表示
大容量の収納です!
-
画像を拡大表示
物件の概要
| 名称 | サンレジデンス錦綾東堀川 3階 | 構造 | 鉄骨鉄筋コンクリート造・鉄筋コンクリート造 |
|---|---|---|---|
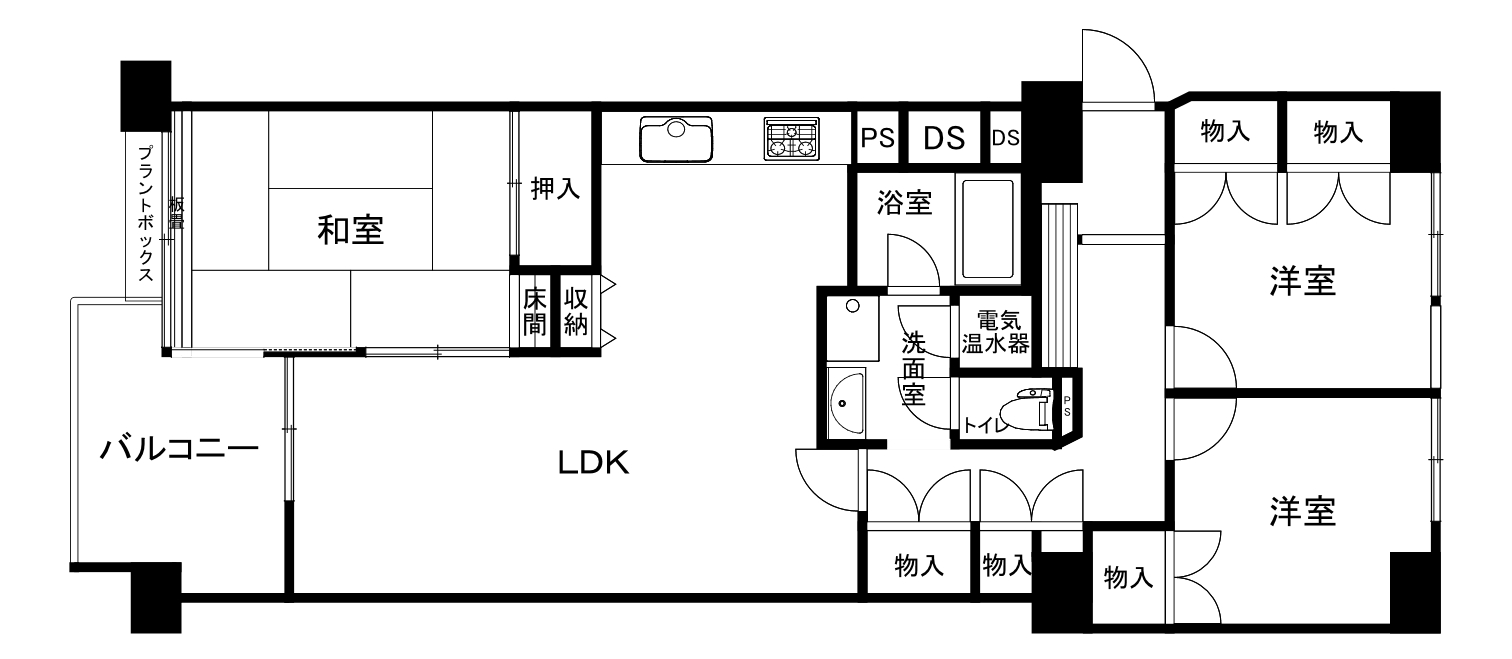
| 間取り詳細 | |||
| 駐車場 | 近隣 | 所在階/階数 | 3階 (11階建て) |
| 設備・条件 | 分譲マンション/エレベーター/システムキッチン/洗面所/バス・トイレ別/室内洗濯機置場/ウォシュレット/御所西エリア | ||
| 施工会社 | 株式会社竹中工務店 | 分譲会社 | |
| 管理会社 | 株式会社双日ライフワン | 管理形態 | 全部委託(日勤) |
| 取引態様 | 仲介 | その他一時金 | 0円 |
| その他月次費用 | 0円 | その他費用 | 0円 |
| 建ぺい率 | 容積率 | ||
| 敷地の権利形態 | 所有権 | 総戸数 | 182戸 |
| 地目 | 都市計画 | 市街化区域 | |
| 用途地域 | 商業地域・準工業地域 | 現況 | 空家 |
| 引き渡し時期 | 相談 | 法令上の制限 | |
| 国土法による許可または事前届出 | |||
| 備考 | ・面積は壁芯面積(公簿面積は80.99u) | ||
地図情報


[物件担当者コメント]
サンレジデンス錦綾東堀川3階の物件詳細ページ
3階部分 西向きバルコニー 3LDK(壁芯85.15u) ゆったりとした広さが魅力です 東側にも窓があり風通しの良い物件です 西側は堀川遊歩道があり室内からは樹々を眺めることができ自然を感じられます
内装の一部はリフォームが施されています!2020年1月にキッチン・浴室・トイレ・電気温水器が交換され、クロスは全室張り替えされています。2022年3月に畳の表替えがされています
☆空家ですので、ごゆっくり見学いただけます☆お気軽にお問合せください
サンレジデンス錦綾東堀川の最寄り駅は地下鉄烏丸線今出川駅で徒歩約10分 新町小学校区、上京中学校区 スーパーマーケット、コンビニ、ドラッグストアー、スポーツジム、病院等が近くの堀川今出川周辺にあり徒歩10分圏内です 毎日の買い物も困りません! 晴明神社、一条戻り橋、上京区役所等も近くにございます