• HOME
  • 借りる
  • MACHI WORK御所西 3E号室(IR003148)

MACHI WORK御所西 3E号室(IR003148)

[物件種別:事業用]

賃料/管理費等 13.75万円/8,800円 敷金 1ヵ月 礼金 2ヵ月
保証金 0円 解約引 契約年数 2年
更新料 1ヵ月 その他費用 ○水道料金:月額3000円 ○火災保険加入要 ○清掃代(入居時):44000円(税込) ○賃料、共益費、礼金は税込表示です
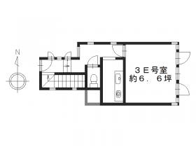
間取り 面積 21.89m2 築年月 1987年3月
住所 京都府京都市上京区堀松町419MACHI WORK御所西
アクセス 京都市営地下鉄烏丸線丸太町駅 徒歩 2分
京都市営地下鉄烏丸線烏丸御池駅 徒歩 12分
京阪本線神宮丸太町駅 徒歩 15分
  • 分譲マンション
  • オートロック
  • エレベーター
  • システムキッチン
  • 洗面所
  • 追炊き機能
  • 礼金無
  • 敷金無
  • エアコン
  • ペットOK
  • 楽器相談
  • 宅配BOX
  • 駐車場有
  • BS/CSアンテナ
  • インターネット
  • 床暖房
  • バス・トイレ別
  • ユニットバス
  • 室内洗濯機置場
  • ウォシュレット
  • 浴室乾燥機
  • フローリング
  • トランクルーム
  • 1階店舗
  • CATV
  • 南向き
  • TV付インターホン
  • 飲食店可
  • 新築
  • ルームシェアOK
  • 保証会社要加入
  • 田の字地区
  • 御所南学区
  • 御所東学区
  • 御所西エリア
  • 御所北エリア
  • 西陣エリア

部屋の写真・間取りなど

物件の概要

名称 MACHI WORK御所西 3E号室 構造 鉄骨ALC造
間取り詳細 約6.6坪 駐車場 近隣
所在階/階数 3階 (3階建て) 採光面
設備・条件 保証会社要加入/御所西エリア
入居日 空き予定
備考 ○トイレ、給湯室は共用部にございます

[物件担当者コメント]

MACHI WORK御所西は地下鉄烏丸線丸太町駅から徒歩2分のテナントビル 烏丸通りに面しております ビルの向かいは京都御所がありアクセスが良く、また京都御所の緑もあり落ち着いた地域で絶好のロケーション また、丸太町通りは市バスの路線も充実してります 近隣には京都府庁、文化庁、京都第二赤十字病院、京都地方裁判所等がございます
ビルは鉄骨ALC造で3階建て 物件は3階部分の東側 烏丸通りに面した区画で室内からは京都御所の眺望がございます!
面積は21.89u 約6.6坪 ワンフロアーに2区画ございます 各フロアーにトイレと給湯室がございます

地図情報